Close
首頁
尋找南投房屋出售
查詢南投房屋出租
買賣南投房屋社區大樓
買南投土地找南投土地
南投不動產委託買賣
南投不動產知識
google查詢
台中市霧峰區透天出售
首頁
尋找南投房屋出售
查詢南投房屋出租
買賣南投房屋社區大樓
買南投土地找南投土地
南投不動產委託買賣
南投不動產知識
google查詢
首頁
›
尋找南投房屋出售
›
台中透天
›
霧峰透天
›
台中市霧峰區透天出售
台中市霧峰區透天出售|霧峰房屋霧峰透天霧峰店面霧峰廠房烏日房屋烏日店面大里店面
售
霧峰房屋-中投23年屋33地坪透天厝
列印
售1398萬
類型:
透天_別墅
總登記坪數:
66.6坪
每坪單價:
20.99萬/坪
地址:
台中市霧峰區四德北路
洪琬婷
(煩請告知聯絡人,您是在House-Info房屋網看到廣告,感恩幫忙)
0939-868-322
市話:
洪琬婷 0939-868322
公司名稱:
禾豐不動產經紀有限公司
公司地址:
南投縣草屯鎮成功路一段239號
我要留言
加LINE好友
物件介紹
詳細資料
銷售狀態
:
帶看中
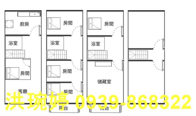
格局
:
5房,3廳,3衛
屋齡
:
23年
車位
:
有車位
座向
:
朝西北
所在樓層
:
3樓
管委會
:
沒有
中庭
:
沒有
電梯
:
沒有
面前道路
:
約5米
面寬
:
約5米
縱深
:
約21.8米
邊間
:
是
瀏覽人次
:
34人次
周邊環境
鄰近交通
:
中投.國三.74交流道
鄰近學區
:
四德國小,霧峰國中
坪數說明
建物登記總坪數
:
66.6
主建物
:
60.48
附屬建物
:
6.12
土地登記總坪數
:
33.46
特色描述
標準格局、間間大房
自地自建、屋況如新
四德路商圈、機能優
國3、中投、74旁
📞 21不動產 洪琬婷
服務區域|霧峰・草屯・南投·芬園
LINE ID / 電話0939868322
霧峰透天-0
霧峰透天-1
霧峰透天-2
霧峰透天-3
霧峰透天-4
霧峰透天-5
霧峰透天-6
物件留言
請注意,如果您詢問的內容與物件不相符合或是廣告,經過審核,系統將會直接刪除您的發問內容
相似物件
霧峰
售2480萬
霧峰區五福路
類型:透天_別墅
坪數:69.15坪
格局:5房
霧峰
售1380萬
霧峰區四德路
類型:透天_店面
坪數:44.35坪
格局:7房
霧峰
售1480萬
霧峰區五福路
類型:透天_別墅
坪數:59.77坪
格局:5房
霧峰
售1688萬
霧峰區柳豐路
類型:透天_別墅
坪數:42.14坪
格局:3房
霧峰
售2388萬
霧峰區柳豐東路19巷A2
類型:透天_別墅
坪數:58坪
格局:4房
霧峰
售2350萬
霧峰區中正路
類型:透天_店面
坪數:65.2坪
格局:5房
住宅分類
霧峰公寓
霧峰電梯大樓
霧峰大樓建案
霧峰華廈
霧峰套房
霧峰透天
霧峰透天厝
霧峰透天別墅
霧峰透天建案
霧峰農舍
霧峰別墅
霧峰一樓
霧峰工業住宅
霧峰店面
霧峰廠房
霧峰工業廠房
霧峰廠辦
霧峰商辦
霧峰辦公室
霧峰倉庫
免責聲明:House-Info房屋網平台系統為租用式開放房屋買賣網站建置平台,僅提供會員查詢-
台中市
,
霧峰區
,
透天
-等房屋資訊參考,並不涉入任何諮詢、交易。 物件(服務)聯絡人公佈的資訊、文字、照片、圖形、產權、廣告內容、或其他資料若有不實或違法情事,或與客戶聯絡交易過程中若衍生民事或刑事等法律問題,皆與House-Info房屋網站無關,所有商標、文章、名稱等版權,皆歸屬原著作者所有!
台中房屋
|
台中市房子
|
台中房子
|
買台中房屋
|
台中市房屋
|
台中買房子
資料處理中,請稍後...